Moeding terracotta ploče
Razvoj jedinstvenih i održivih fasada naša je temeljna kompetencija. U svakom zahtjevu vidimo zadatak koji treba riješiti. I čini nas ponosnima što gotovo uvijek uspijemo. Spektar je širok - od vodoravno zakrivljenih panela za stanove u parku na Belvedereu u Beču, do posebne crvene glazure s crnim plamenom za vatrogasnu stanicu u Hamburgu, do prevelikih okvira prozora za neboder na Broadwayu u New Yorku iz 1865. samo mali izbor da navedemo naše trenutne vrhunce. Ovdje otkrijte razne mogućnosti dizajna za oblik i boju.Što se tiče boja, razlikujemo klasične i glazirane boje. Klasične boje opeke su inherentne boje keramičkih krhotina, tako da se prilikom rezanja površine ne vide nikakvi vizualno uznemirujući krhotine druge boje. Boja se postiže posebnim sastavom korištenih sirovina, nakon procesa pečenja ploče se ne tretiraju dalje. Na zahtjev, nove prirodne posebne boje mogu se razviti individualno za vas uz postojeće.
Svi MOEDING proizvodi imaju jedno zajedničko. Za proizvodnju se koriste samo prirodne sirovine bez umjetnih dodataka. Fasade od opeke nisu samo prirodne, izdržljive i elegantne, one su također iznimno individualne i svestrane. Od klasičnih pravokutnih ploča od opeke u raznim formatima, preko posebno oblikovanih elemenata od opeke, do posebnih konstrukcija poput opeke BAGUETTES ili terracotta rešetke SERATON® - asortiman MOEDING-a vrlo je raznolik. Otkrijte raznolikost keramičkih fasada i saznajte koji je proizvod savršen za vaš sljedeći objekt.
Njemački proizvođač terracotta fasadnih ploča tipa "Alphaton" dim. dužine 400-1500 do širine 150-1200 mm i "Longoton" dimenzije do dužine 3000 mm i širine do 1200 mm neglazirane u boji prirodne cigle i u gotovo 20 boja te glazirane u većini boja RAL-a. Ploče mogu biti ravne površine sa rebrima ili površine prema želji projektanta. Montaža ploča se vrši horizontalno ili vertikalno sa nevidljivim kopčama. Prednost montaže u svim vremenskim prilikama. Ploče se mogu nakon montaže vaditi i zamijeniti. Okapnica ploča smanjuje ulaz udarne kiše u fasadu!
MOEDING ALPHATON® PLOČA
ALPHATON® je bio prvi proizvod koji je MOEDING iznio na tržište. Do danas su paneli dokazali svoju vrijednost i koriste se u većini projekata s duljinama panela do 1500 mm. Slobodan izbor između pejzažnog i portretnog formata rezultira širokim rasponom mogućnosti dizajna, ovisno o tome hoće li se zgrada istaknuti širinom ili visinom. Razvili smo posebne sustave montaže za različite tipove ploča: L² Rapid i Gen. 06-Rapid za vodoravne ploče, L² Rapid uspravni format za uspravne ploče.MOEDING LONGOTON® PLOČA
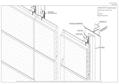
LONGOTON® su MOEDING fasadni paneli velikog formata u duljinama do 3000 mm.Sustav LONGOTON® Gen. 06-Rapid trenutno se koristi za sastavljanje ploča od terracotta duljine do 3000 mm u pejzažnom formatu. Svi nosači panela fasade koja se ugrađuje pričvršćuju se na vertikalne profile šupljim zakovicama ili samobušećim vijcima od nehrđajućeg čelika. Nakon pričvršćivanja podkonstrukcije sa svim držačima ploča, terracotta ploče se vješaju bez alata. Gen. 06 Rapid System prikladan je za sve LONGOTON® ploče u duljinama do 3000 mm. Montaža se ovdje izvodi u horizontalnoj orijentaciji.


